Home » Immobili » Vendita » Trilocale completamente ristrutturato

Trilocale completamente ristrutturato

€ 170000,00

VENDUTO

CONDIVIDI

Descrizione

Vendita Attico Trilocale – Zona Borghesiana

Proponiamo in vendita un elegante attico trilocale, situato in una traversa di via di Vermicino, nel cuore della zona Borghesiana. L’immobile si trova in una posizione residenziale, ben collegata e a pochi passi dai principali servizi del quartiere.
Recentemente ristrutturato, l’appartamento presenta finiture moderne e di alta qualità, con materiali e impianti pari al nuovo. Tra le caratteristiche principali troviamo:

• Riscaldamento a pavimento
• Aria Condizionata
• Caldaia a condensazione nuova
• Tende da sole
• Pavimentazione in gres porcellanato a grande formato
• Porta blindata
• Faretti a LED in tutta la zona giorno e nel bagno
• Serrande elettriche
• Infissi in PVC bianco con doppio vetro
• Sanitari sospesi e a filo muro
• Mobile bagno con lavabo in appoggio
• Box doccia extra-large
• Cucina a induzione
• Impianto di domotica
• Zanzariere
• Esterno appena ritinteggiato

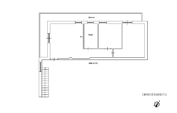
L’appartamento si compone di un ampio e luminoso soggiorno con angolo cottura, una spaziosa camera matrimoniale, una comoda cameretta e un bagno dotato di finestra e box doccia doppio.

La proprietà è completata da un affascinante soppalco e un lungo balcone angolare che offre una piacevole vista.

“Alcune immagini includono elementi di arredamento generati digitalmente con intelligenza artificiale, inseriti a scopo illustrativo.”

Inoltre, è disponibile la possibilità di acquistare o affittare un ampio posto auto.

Caratteristiche

TIPOLOGIA: Appartamento

VANI: 3

METRI QUADRI: 65

ANNO DI COSTRUZIONE: 1985

STATO INTERNO: Ottimo

STATO ESTERNO: Ottimo

PIANI STABILE: 2

PIANO IMMOBILE: Ultimo

NUMERO CONDOMINI: 10

BALCONI: 1

BAGNI: 1

POSTO AUTO: acquistabile separatamente

SPESE CONDOMINIALI: € 40,00

RISCALDAMENTO: Autonomo

CLASSE ENERGETICA: E

Richiedi maggiori info

Nominativo
Trattamento dei dati personali
- o -

Info & contatti

Per richiedere maggiori info sui nostri servizi, clicca su uno dei pulsanti sottostanti e contattaci.